
Ulica: | M. R. Štefánika |
---|---|
Obec: | Brezová pod Bradlom |
Okres: | Myjava |
Kraj: | Trenčiansky kraj |
Druh: | Domy |
Typ: | Predaj |
Typ domu: | Rodinný dom |
Iné: |
BIBI reality s.r.o. Vám Ponúka na predaj rodinný dom v Brezovej pod Bradlom. Dom je v po čiastočnej rkonštrukcii. Dom je situovaný v centre mesta s podielom na prístupovej ceste. Parkovanie je možné v garáži alebo pred domom.
Rodinný dom:
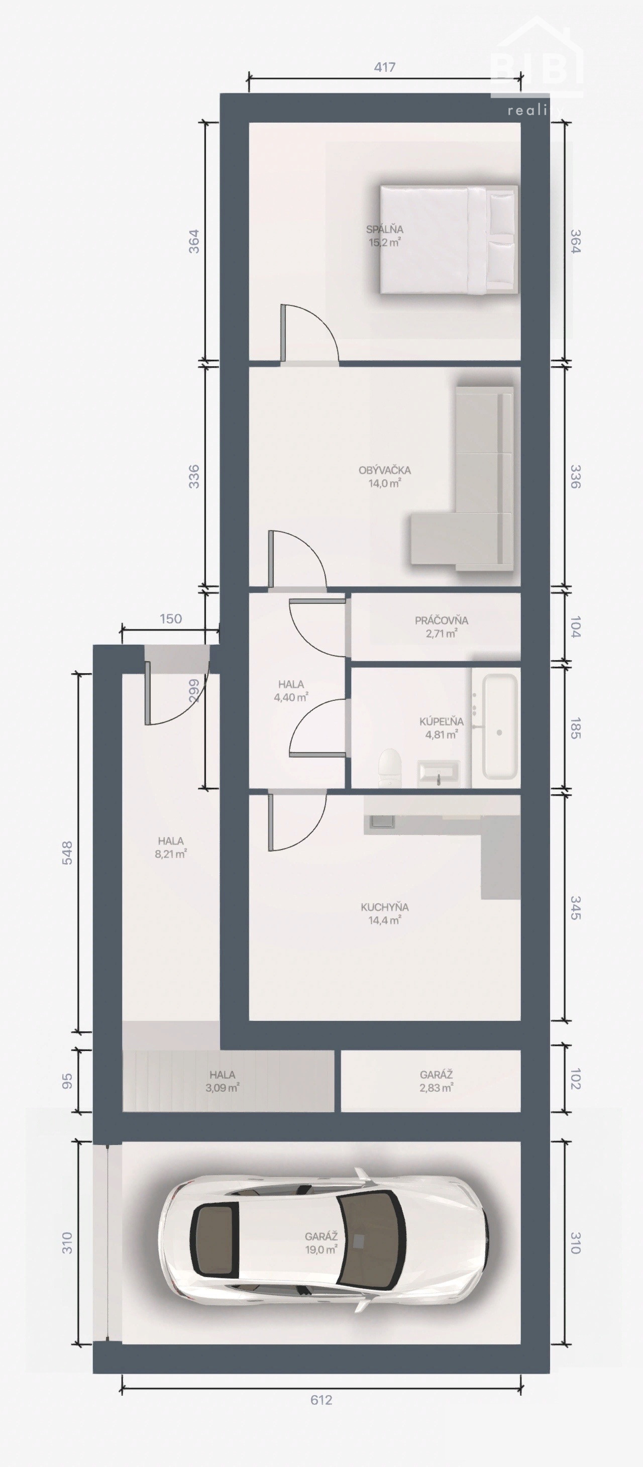
- dom po čiastočnej rekonštrukcii o rozlohe 113 m2,
- pôvodná ale zachovalá strecha s pochôdznou povalou a možnosťou prerobenia na podkrovné izby,
- stavebný materiál: tehla,
- kúrenie: na tuhé palivo alebo kotlom,
- plastové okná na prízemí, drevené okná na poschodí
- dispozícia prízemie: predsieň s vstupom na poschodie, chodba, zariadená kuchyňa s jedálenským stolom, kúpeľňa s WC, špajza, obývaca izba, spálňa
- dispozícia prvé poschodie: chodbička, spálňa s balkónom, WC, povala s možnosťou prerobenia na izby
- garáž s montážnou jamou
- čiastočne podpivničený
Pozemok:
- rozloha 142 m2
- v zastavanej časti obce
Inžinierske siete:
- voda
- plyn pred pozemkom
- elektrina
- kanalizácia
Výhody:
- možnosť rekonštrukcie podľa vlastným predstáv,
- kompltn občianska vybavenosť
- výborná cena
- garáž s montážnou jamou
Cena: 89.000,- EUR
V cene je zahrnutá provízia realitnej kancelárie a kompletný právny servis zabezpečovaný advokátskou kanceláriou, poplatky za vklad do katastra, poplatky u notára. Naša realitná kancelária ponúka bezplatnú možnosť zabezpečenia najvýhodnejšieho financovania nehnuteľnosti cez všetky banky na Slovensku.
Kontakt:
Ing. Michal Haring
0915 553 053
Haring@bibireality.sk
konateľ, realitný maklér