Používame cookies

Súbory cookie a ďalšie technológie sledovania používame na zlepšenie vášho zážitku z prehliadania našich webových stránok, na to, aby sme vám zobrazovali prispôsobený obsah a cielené reklamy, na analýzu návštevnosti našich webových stránok a na pochopenie toho, odkiaľ naši návštevníci prichádzajú. Viac info

 

Popis nehnuteľnosti

BIBI reality s.r.o. Vám Ponúka na predaj nádherný priestranný 4-izbový rodinný dom v obci Sokolovce na Piešťanskej ulici pri Piešťanoch. Nachádza sa v jednosmernej ulici v smere na Piešťany. Za pozemkom sa nachádza les, čo garantuje kľud a pohodu. 

Rodinný dom: 
- samostatne stojaci poschodový 4-izbový rodinný dom s obytným podkrovím
- zastavaná plocha 79 m2
- úžitková plocha 167 m2
- komplet podpivničený so vstupom zo záhrady
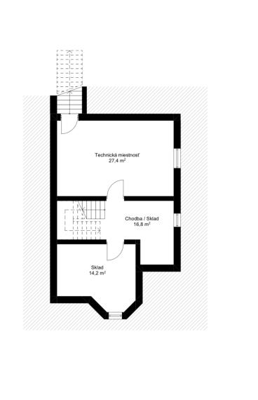
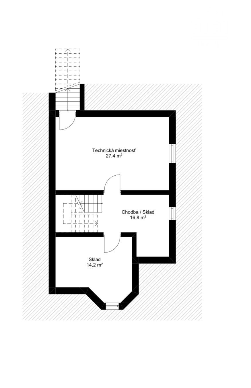
- technická miestnosť v pivnici s elektrickým bojlerom a kotlom na tuhé palivo
- krytá terasa so vstupom z obývacej izby
- prístrešok s úložným priestorom
- radiátory v pivnici, na prízemí aj v podkroví

Dispozícia:
Prízemie: zádverie so vstavanou skriňou, chodba, zariadená kuchyňa so spotrebičmi a jedálenským stolom, samostatné WC, priestranná obývacia izba s krbom a vstupom na terasu.
Podkrovie: chodba, 2x spálňa so vstupom na balkón orientovaným do záhrady, spálňa so šatníkom a vstupom na loggiu, kúpeľňa.
 Pivnica: technická miestnosť s elektrickým bojlerom a kotlom na tuhé palivo, skladová miestnosť.

Pozemok:
- rozloha 698 m2
- obdĺžnik, rovinatý a v zadnej časti mierne do svahu, kde je umiestnená pivnička
- dĺžka 54m, šírka vpredu 14m, šírka vzadu 12m
- narážaná studňa
- v zastavanej časti obce
- vstup na pozemok je cez posuvnú elektrickú bránu ako aj dvojkrídlovú manuálnu bránu
- parkovanie je možné na zastrešenom garážovom státií, ako aj pred domom (spolu pre 7 automobilov)

Záhrada:
- priestranná, priamo pod lesom
- menšie jazierko
- koterec pre psa
- krb v zadnej časť záhrady
- možnosť vybudovať bazén na pozemku

Inžinierske siete:
- obecná voda
- elektrina
- plyn
- žumpa - 10 m3

Lokalita:
- len 6 km od Piešťan
- vodná nádrž Sĺňava - vodné športy, rybolov
- hať Drahovce - cykloturistika
- kúpele Piešťany

Výhody:
- tichá a zároveň žiadaná lokalita v blízkosti prírody
- výborná dostupnosť do Piešťan (6km), Hlohovca (15km) a Trnavy (43km)
- priestranný rovinatý pozemok s možnosťou vybudovania bazéna
- príjemní susedia
- miesto pre milovníkov prírody, športu a zvierat

Cena: 280.000,- EUR

V cene je zahrnutá provízia realitnej kancelárie a kompletný právny servis zabezpečovaný advokátskou kanceláriou, poplatky za vklad do katastra, poplatky u notára. Naša realitná kancelária ponúka bezplatnú možnosť zabezpečenia najvýhodnejšieho financovania nehnuteľnosti cez všetky banky na Slovensku.

Kontakt:
Ing. Michal Haring
0915 553 053
Haring@bibireality.sk

Vlastnosti

Status:
aktívne
Vlastníctvo:
osobné
Plocha pozemku:
698 m2
Typ zeme:
rovina
Teritórium:
Intravilán
Úžitková plocha:
167 m2
Zastavaná plocha:
79 m2
Stav:
čiastočne prerobený
Balkón:
áno
Loggia:
áno
Terasa:
áno
Garáž:
áno
Pivnica:
áno
Špajza:
áno
Sklad:
áno
Dielňa:
áno
Celková plocha:
167 m2
Inžinierske siete:
áno
Voda:
áno
Elektrika:
áno
Plyn:
áno
Voda - na pozemku:
áno
Elektrika - na pozemku:
áno
Elektrika - na pozemku - 230 V:
áno
Elektrika - na pozemku - 380 V:
áno
Plyn - na pozemku:
áno
Vykurovanie - centrálne:
áno
Telefón:
áno
Internet:
áno
Status:
aktívne
Vlastníctvo:
osobné
Plocha pozemku:
698 m2
Typ zeme:
rovina
Teritórium:
Intravilán
Úžitková plocha:
167 m2
Zastavaná plocha:
79 m2
Stav:
čiastočne prerobený
Balkón:
áno
Loggia:
áno
Terasa:
áno
Garáž:
áno
Pivnica:
áno
Špajza:
áno
Sklad:
áno
Dielňa:
áno
Celková plocha:
167 m2
Inžinierske siete:
áno
Voda:
áno
Elektrika:
áno
Plyn:
áno
Voda - na pozemku:
áno
Elektrika - na pozemku:
áno
Elektrika - na pozemku - 230 V:
áno
Elektrika - na pozemku - 380 V:
áno
Plyn - na pozemku:
áno
Vykurovanie - centrálne:
áno
Telefón:
áno
Internet:
áno

Informatívna úverová kalkulačka

Pozrieť na mape

Maklér

Ing. Michal Haring

Ing. Michal Haring

konateľ, realitný maklér

  • Slovensky
  • Česky
  • English
  • rusr

Radi Vám poradíme

Podobné nehnuteľnosti